Al Weibdeh Hotel

Client: Mohammad Al Tarawneh

Project type: Hotel 

Location: Amman, Jordan

Built area: 27 720 sqm

Year: 2016


This four stars hotel stands iconically between Al Weibdeh buildings with it’s unique architectural design and choice of cladding material to attract both locals and tourist


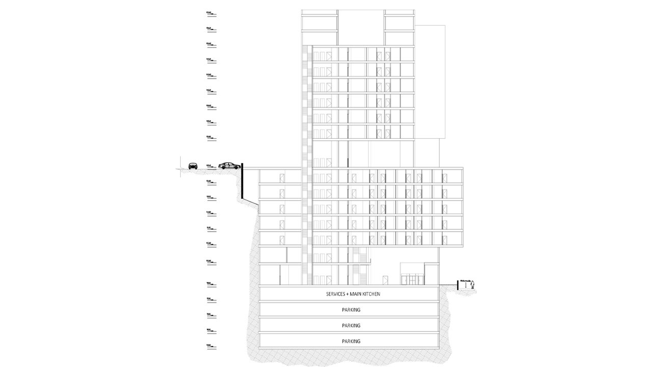
The hotel consists of four basement floors for services and parking, while upper floors are reserved for the hotel’s 145 bedrooms, 51 suits, retail shops, restaurant, café, GYM, and a business center. The site has a 26 m slope which helped create 2 main entries for the hotel on different levels and magnificent panoramic views for users and visitors.


Al Weibdeh Hotel

Client: Mohammad Al Tarawneh

Project type: Hotel 

Location: Amman, Jordan

Built area: 27 720 sqm

Year: 2016


This four stars hotel stands iconically between Al Weibdeh buildings with it’s unique architectural design and choice of cladding material to attract both locals and tourist


The hotel consists of four basement floors for services and parking, while upper floors are reserved for the hotel’s 145 bedrooms, 51 suits, retail shops, restaurant, café, GYM, and a business center. The site has a 26 m slope which helped create 2 main entries for the hotel on different levels and magnificent panoramic views for users and visitors.